FULLY RENOVATED TWO BEDROOM SEMI DETACHED BUNGALOW
Located on Ainsworth Road in the charming town of Bury, this beautifully renovated semi-detached true bungalow offers a perfect blend of…
FULLY RENOVATED TWO BEDROOM SEMI DETACHED BUNGALOW
Located on Ainsworth Road in the charming town of Bury, this beautifully renovated semi-detached true bungalow offers a perfect blend of comfort and modern living. With two generously sized double bedrooms, this property is ideal for couples, small families, or those seeking a peaceful retirement retreat.
Upon entering, you will be greeted by a spacious lounge that provides an inviting atmosphere, perfect for relaxation or entertaining guests. The newly fitted kitchen boasts contemporary design and functionality, making it a delightful space for culinary enthusiasts. The shower room has been tastefully updated, ensuring a fresh and stylish experience.
One of the standout features of this bungalow is the low-maintenance rear garden, which offers a serene outdoor space for enjoying the fresh air without the burden of extensive upkeep. Additionally, the property benefits from a driveway that accommodates multiple vehicles, providing convenience for residents and visitors alike.
This home is ready for you to move in, as it is sold with no chain, allowing for a smooth and hassle-free transition. Whether you are looking to downsize or simply seeking a lovely new home, this bungalow on Ainsworth Road is a fantastic opportunity not to be missed.
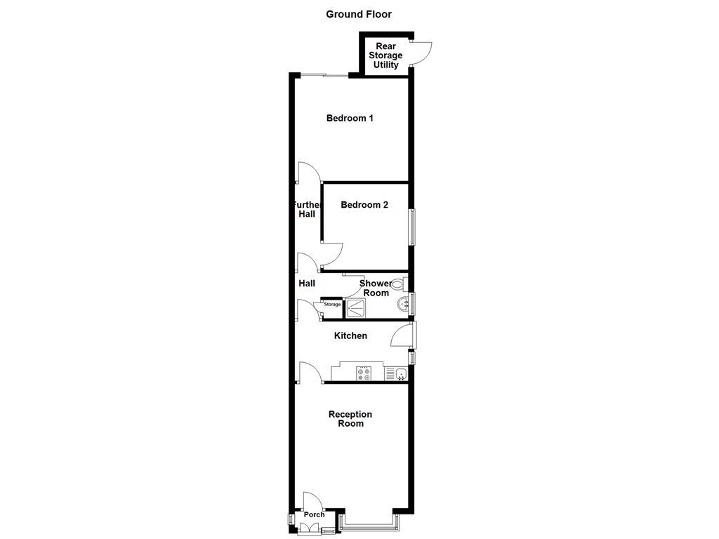
UPVC double glazed frosted doors to porch.
1.42m x 0.58m(4'8 x 1'11)
Hardwood frosted window, wood clad to ceiling, tiled floor and hardwood frosted door to reception room.
3.94m x 3.48m(12'11 x 11'5)
UPVC double glazed box window, central heating radiator, picture rail, meter cupboard and door to kitchen.
3.99m x 3.96m(13'1 x 13')
UPVC frosted window, central heating radiator, panelled wall and base units, wood effect surface, stainless steel sink and drainer with mixer tap, space for free standing oven, integrated dishwasher, tiled splash back, storage, doors to shower room, further hall, composite frosted door to side elevation and wood effect lino flooring.
2.21m x 1.57m(7'3 x 5'2)
UPVC frosted window, central heating radiator, walk in direct feed shower, dual flush WC, pedestal wash basin, PVC to ceiling, extractor fan, tiled elevation and lino flooring.
3.18m x 0.84m(10'5 x 2'9)
Doors to two bedrooms. Door to boiler room with space for washing machine.
3.94m x 3.63m(12'11 x 11'11)
Two Central heating radiators and UPVC double glazed french doors to rear.
3.02m x 3.00m(9'11 x 9'10)
UPVC double glazed window and central heating radiator.
Lean-to for extra storage.
Solar panels that feed the hot water and the grid, replacement surface water drains, new windows and doors all round, and a new front driveway.
Enclosed garden with flags and stone chippings.
Paved drive and stone chippings.
No.2 The Rock, Bury, BL9 0NT.