• 4 Bed
  • 2 Bath
  • 2 Receptions

Britannia Street, Great Harwood, Blackburn

£259,950

A DELUXE OFFICE AND APARTMENT INVESTMENT OPPORTUNITY

This impressive building comprising of a fantastic office space on the ground floor and two spacious apartments on the first floor…

  • Office Block With Flats
  • Commercial EPC Rating E
  • Flat 1 EPC Rating C
  • Flat 2 EPC Rating C
  • Tenure Freehold
  • Flat 1 Council Tax Band C
  • Flat 2 Council Tax Band C
  • On Street Parking
  • Ideal Rental Investment
  • Easy Access To Major Commuter Routes

A DELUXE OFFICE AND APARTMENT INVESTMENT OPPORTUNITY

This impressive building comprising of a fantastic office space on the ground floor and two spacious apartments on the first floor are being proudly welcomed to the market within a highly sought after area of Great Harwood. With a high quality finish and an abundance of indoor space, this property is the perfect opportunity for someone looking for a fantastic business/rental space! Situated conveniently close to bus routes, amenities, and network links to Blackburn, Clitheroe and Accrington.

The office space comprises of; a welcoming shop front leads on to five generously sized office spaces, kitchenette and WC. Both apartments comprise of two generously sized bedrooms, fantastic open plan kitchen/living spaces and modern four piece bathroom suites. Externally there is a plot of land to the rear with storage building.

For further information or to arrange a viewing please contact our Accrington office at your earliest convenience.

Some photos have been virtually staged to help you envision your dream space!

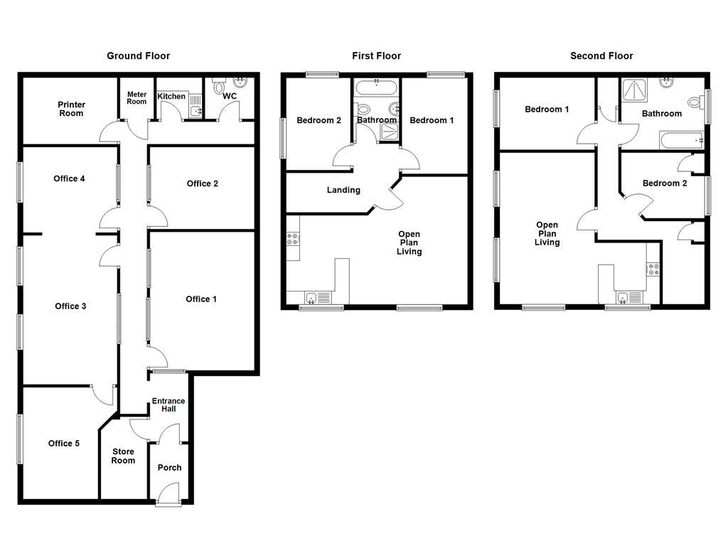
Ground Floor

Entrance Porch

2.03m x 1.42m(6'8 x 4'8)

Composite double glazed entrance door, pelmet lighting and doors to the front office.

Office

5.59m x 1.42m(18'4 x 4'8)

Pelmet lighting and doors to hallway and store room.

Store Room

3.20m x 1.73m(10'6 x 5'8)

Fitted shelving.

Hallway

11.66m x 4.78m(38'3 x 15'8)

Two smoke alarms and oak doors to three offices, printer room, meter room, kitchenette and WC.

Kitchenette

1.70m x 1.47m(5'7 x 4'10)

Range of wood effect wall and base units with granite effect surfaces, stainless steel sink with drainer and mixer tap, space for fridge freezer, extractor fan and lino flooring.

WC

1.70m x 1.57m(5'7 x 5'2)

Pedestal wash basin, dual flush WC, extractor fan and lino flooring.

Meter Room

1.55m x 1.24m(5'1 x 4'1)

Printer Room

3.51m x 2.08m(11'6 x 6'10)

Meter cupboard.

Office Room One

5.16m x 3.89m(16'11 x 12'9)

Two hardwood single glazed frosted windows and electric heater.

Office Room Two

3.76m x 3.66m(12'4 x 12')

Hardwood single glazed frosted window, electric heater and storage cupboard.

Office Room Three

5.77m x 3.51m(18'11 x 11'6)

Two UPVC double glazed windows, electric heater, fitted storage, open to office room four and door to office room five.

Office Room Four

3.58m x 3.51m(11'9 x 11'6)

UPVC double glazed window, two hardwood single glazed frosted windows and fitted storage.

Office Room Five

3.94m x 3.51m(12'11 x 11'6)

UPVC double glazed window, electric heater and television point.

Flat One Entrance

Hallway

2.31m x 1.30m(7'7 x 4'3)

Composite double glazed entrance door, central heating radiator, meter cupboard and stairs to the first floor.

First Floor Flat One

Hallway

4.32m x 2.01m(14'2 x 6'7)

UPVC double glazed window, central heating radiator, dado rail and doors to open plan living kitchen, two bedrooms and bathroom.

Open Plan Living Kitchen

6.55m x 4.88m(21'6 x 16')

Two UPVC double glazed windows, central heating radiator, range of wood effect wall and base units with granite effect surfaces and tiled splashbacks, stainless steel sink with drainer and mixer tap, electric oven with four ring gas hob, extractor hood, integrated fridge, utility cupboard, spotlights and tiled flooring.

Bedroom One

3.53m x 3.18m(11'7 x 10'5)

UPVC double glazed window, central heating radiator, television point and spotlights.

Bedroom Two

3.43m x 2.39m(11'3 x 7'10)

Two UPVC double glazed windows and central heating radiator.

Bathroom

2.29m x 1.70m(7'6 x 5'7)

Chrome heated towel rail, dual flush WC, tile panelled bath, pedestal wash basin, direct feed shower unit, tiled elevations, spotlights, extractor fan and tiled flooring.

Flat Two Entrance

Hallway

4.67m x 1.68m(15'4 x 5'6)

Composite double glazed entrance door, meter cupboard, understairs storage and stairs to the first floor.

First Floor Flat Two

Hallway

4.78m x 4.27m(15'8 x 14')

UPVC double glazed window, central heating radiator, meter cupboard and oak doors to open plan living kitchen, two bedrooms, bathroom and storage cupboard.

Open Plan Living Kitchen

6.43m x 5.59m(21'1 x 18'4)

Four UPVC double glazed windows, central heating radiator, television point, range of wall and base units with wood surfaces and tiled splashbacks, stainless steel sink with drainer and mixer tap, electric oven with four ring gas hob, extractor hood, space for fridge freezer, spotlights and tiled flooring.

Bedroom One

4.19m x 3.20m(13'9 x 10'6)

UPVC double glazed window, central heating radiator and spotlights.

Bedroom Two

3.10m x 2.49m(10'2 x 8'2)

UPVC double glazed window, central heating radiator and fitted storage.

Bathroom

3.10m x 2.01m(10'2 x 6'7)

UPVC double glazed window, chrome heated towel rail, tile panelled bath, dual flush WC, vanity top wash basin, direct feed shower unit, part tiled elevations, spotlights, extractor fan and tiled flooring.

Read more

  • Office Block With Flats
  • Commercial EPC Rating E
  • Flat 1 EPC Rating C
  • Flat 2 EPC Rating C
  • Tenure Freehold
  • Flat 1 Council Tax Band C
  • Flat 2 Council Tax Band C
  • On Street Parking
  • Ideal Rental Investment
  • Easy Access To Major Commuter Routes

Contact the agent

  7 Blackburn Rd, Accrington, BB5 1HF.


Location

Use one of our helpful calculators

years
%

Your approximate mortgage cost is:

£0/month

Stamp duty to pay is:

£0

What's nearby?

floorplan

Similar properties

We’re proud to be a part of