• 4 Bed
  • 2 Bath
  • 1 Receptions

Chatburn Close, Rossendale

£1,395 pcm

A SPACIOUS FOUR BEDROOM FAMILY HOME

Nestled in the heart of a popular area on the outskirts of Rawntenstall, this four-bedroom, family home is being welcomed to the…

  • Council Tax Band D
  • EPC Rating C
  • Four Bedroom Detached Property
  • Off Road Parking
  • Fitted Kitchen
  • Ideal Home For A family
  • Viewing Essential
  • Close Proximity To Schools & Amenities
  • Easy Access To Major Commuter Routes

A SPACIOUS FOUR BEDROOM FAMILY HOME

Nestled in the heart of a popular area on the outskirts of Rawntenstall, this four-bedroom, family home is being welcomed to the rental market. Spacious living accommodation and well-proportioned bedrooms with easy access to all local amenities, schools and commuter routes towards Burnley, Bury and Manchester.

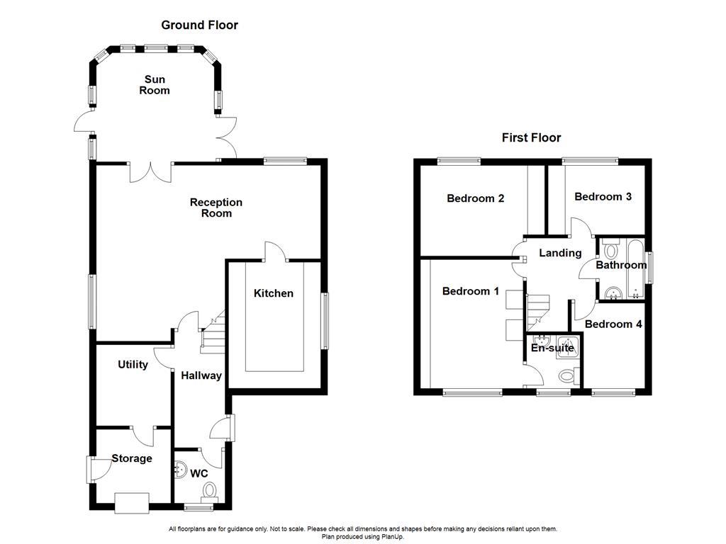
The property comprises briefly, to the ground floor: entrance into a welcoming hallway with stairs leading to the first floor and doors providing access to a downstairs WC, a utility room and a spacious reception room. The reception room leads into the fitted kitchen and a sun room. To the first floor is a landing with doors leading to four bedrooms and a three-piece bathroom suite. The master bedroom benefits from an ensuite. Externally the property boasts a block paved rear garden with bedding areas and a shed. The front has off-road parking on a paved driveway with a laid to lawn garden.

For further information, or to arrange a viewing, please contact our lettings team at your earliest convenience. For the latest upcoming properties, make sure you are following our Instagram @keenans.ea and Facebook @keenansestateagents

Ground Floor

Entrance

Via a double glazed front door to hallway.

Hallway

3.40m x 1.70m(11'2 x 5'7)

Coving, spotlights, wood effect floor, doors leading to WC, utility, reception room and stairs to first floor.

WC

1.52m x 1.50m(5' x 4'11)

UPVC double glazed window, central heating radiator, low bowl WC, pedestal wash basin with mixer tap, wood effect floor and coving.

Utility

2.36m x 2.18m(7'9 x 7'2)

Central heating radiator, boiler, meter cupboard, plumbed for washing machine, tiled floor and door leading to storage area.

Reception Room

5.16m x 3.20m(16'11 x 10'6)

Two UPVC double glazed windows, central heating radiator, coving, gas fire, marble effect hearth, smoke alarm, door leading to sunroom and kitchen.

Sun Room

3.45m x 3.20m(11'4 x 10'6)

Nine UPVC double glazed windows, tile effect floor, UPVC double glazed French doors to garden, UPVC double glazed door to rear.

Kitchen

3.71m x 2.34m(12'2 x 7'8)

UPVC double glazed window, central heating radiator, range of wall and base units, space for oven and hob, extractor hob, integrated fridge, composite one and a half sink and drainer with mixer tap, granite effect work top, part tiled elevation and lino floor.

First Floor

Landing

2.79m x 2.06m(9'2 x 6'9)

Loft access, door leading to four bedrooms and bathroom.

Bedroom One

3.71m x 3.05m(12'2 x 10')

UPVC double glazed window, central heating radiator, drawers, fitted wardrobe and door to en suite.

En Suite

1.57m x 1.57m(5'2 x 5'2)

UPVC double glazed window, central heating radiator, low bowl WC, pedestal wash basin with mixer tap, direct feed shower, full tiled elevation and lino floor.

Bedroom Two

2.79m x 2.69m(9'2 x 8'10)

UPVC double glazed window, central heating radiator and fitted wardrobe.

Bedroom Three

2.67m x 1.83m(8'9 x 6')

UPVC double glazed window, central heating radiator and fitted wardrobe.

Bathroom

2.03m x 1.35m(6'8 x 4'5)

UPVC double glazed window, central heating radiator, low bowl WC, pedestal wash basin, PVC panel bath, electric shower, full tiled elevation and lino floor.

Bedroom Four

2.51m x 1.78m(8'3 x 5'10)

UPVC double glazed window and central heating radiator.

External

Rear

Paved patio, stone chippings, bedding areas, mature shrubs and trees.

Storage Area

2.95m x 2.31m(9'8 x 7'7)

Read more

  • Council Tax Band D
  • EPC Rating C
  • Four Bedroom Detached Property
  • Off Road Parking
  • Fitted Kitchen
  • Ideal Home For A family
  • Viewing Essential
  • Close Proximity To Schools & Amenities
  • Easy Access To Major Commuter Routes

Contact the agent

  21 Manchester Road, Burnley, BB11 1HG


Location

Use one of our helpful calculators

years
%

Your approximate mortgage cost is:

£0/month

Stamp duty to pay is:

£0

What's nearby?

floorplan

Property EPC 1

Similar properties

We’re proud to be a part of