• 2 Bed
  • 1 Bath
  • 1 Receptions

Cross Street, Rossendale

£185,000

AN IDYLLIC END TERRACED PROPERTY

Nestled in the charming village of Crawshawbooth, on Cross Street, this exceptional end terraced house is a true gem. Presented and maintained to…

  • An Exceptional End Terraced Property
  • Two Double Bedrooms
  • Loft Conversion
  • Beautiful Features
  • Stylish Interiors And Enviable Views
  • Fantastic Ground Floor Extension With Utility And Store Room
  • On Street Parking
  • Council Tax Band A
  • EPC Rating D
  • Tenure Freehold

AN IDYLLIC END TERRACED PROPERTY

Nestled in the charming village of Crawshawbooth, on Cross Street, this exceptional end terraced house is a true gem. Presented and maintained to the highest standard, the property boasts immaculate interiors that blend stylish modernity with stunning original features, creating a warm and inviting atmosphere.

The home offers two generously sized double bedrooms, providing ample space for a small family. A thoughtfully designed loft conversion adds versatility, making it an ideal space for a home office or playroom. The spacious living area is perfect for relaxation and entertaining, while the fantastic ground floor extension at the rear enhances the functionality of the home. This extension includes a utility room and a convenient store room, ensuring that all your storage needs are met.

One of the standout features of this property is its breath-taking panoramic countryside views, which can be enjoyed from various vantage points throughout the home. The property is not overlooked, providing a sense of privacy and tranquillity that is hard to find.

This delightful house is bursting with character and charm, making it the perfect home for any small family looking to move straight in. With its prime location in the heart of Crawshawbooth, you will find yourself surrounded by a vibrant community and the beauty of the surrounding countryside. Do not miss the opportunity to make this stunning property your new home.

For further information or to arrange a viewing please contact our Rossendale branch at your earliest convenience.

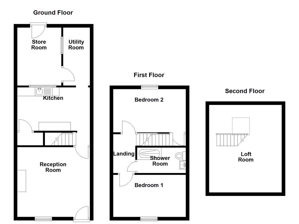
Ground Floor

Reception Room

4.19m x 4.04m(13'9 x 13'3)

Inner Hallway

0.86m x 0.64m(2'10 x 2'1)

Kitchen

4.19m x 2.62m(13'9 x 8'7)

Utility Room

3.35m x 1.55m(11 x 5'1)

Store Room

3.35m x 2.46m(11 x 8'1)

First Floor

Landing

2.26m x 1.27m(7'5 x 4'2)

Bedroom One

4.19m x 2.44m(13'9 x 8)

Bedroom Two

4.19m x 2.62m(13'9 x 8'7)

Shower Room

2.82m x 1.37m(9'3 x 4'6)

Second Floor

Loft Room

5.11m x 4.19m(16'9 x 13'9)

Read more

  • An Exceptional End Terraced Property
  • Two Double Bedrooms
  • Loft Conversion
  • Beautiful Features
  • Stylish Interiors And Enviable Views
  • Fantastic Ground Floor Extension With Utility And Store Room
  • On Street Parking
  • Council Tax Band A
  • EPC Rating D
  • Tenure Freehold

Contact the agent

  75 Bank St, Rawtenstall, Rossendale, BB4 7QN.


Location

Use one of our helpful calculators

years
%

Your approximate mortgage cost is:

£0/month

Stamp duty to pay is:

£0

What's nearby?

floorplan

Property EPC 1

Similar properties

We’re proud to be a part of