A MODERN TWO BEDROOM MID TERRACE PROPERTY WITH ADDED LOFT ROOM
Located on the charming Fountain Street in Accrington, this delightful two-bedroom mid-terrace house offers a perfect blend…
A MODERN TWO BEDROOM MID TERRACE PROPERTY WITH ADDED LOFT ROOM
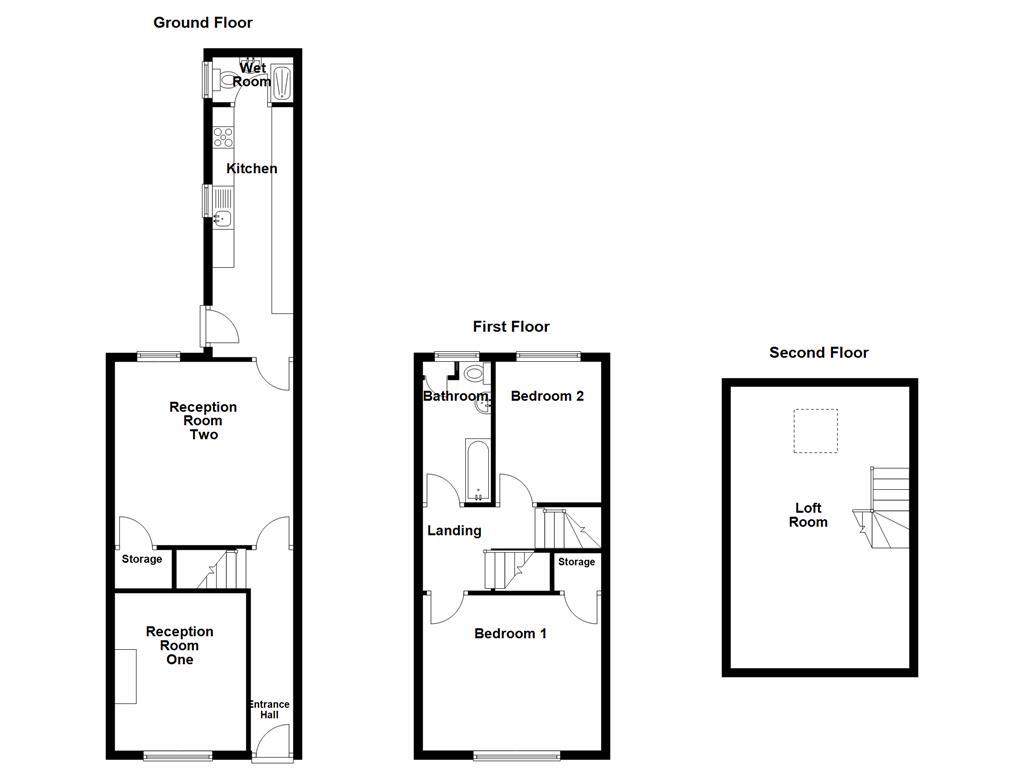
Located on the charming Fountain Street in Accrington, this delightful two-bedroom mid-terrace house offers a perfect blend of modern living and convenience. Upon entering, you will find two inviting living areas that provide ample space for relaxation and entertaining. The contemporary kitchen is well-equipped, making it a joy for any home cook.
This property boasts two generously sized double bedrooms on the first floor, ensuring comfort and privacy for all occupants. Additionally, the versatile loft room presents an excellent opportunity for a home office, playroom, or extra guest accommodation, adapting to your lifestyle needs.
The ground floor features a convenient wet room, alongside a family bathroom, catering to the demands of modern family life. Outside, the rear yard offers a private outdoor space, ideal for enjoying the fresh air or hosting summer gatherings.
Situated in close proximity to local schools and the town centre, this home is perfectly positioned for families and professionals alike. With its thoughtful layout and modern amenities, this property is a wonderful opportunity for those seeking a comfortable and convenient lifestyle in Accrington.
4.67m x 0.99m(15'4 x 3'3)
3.66m x 3.05m(12' x 10')
4.27m x 41.76m(14' x 137)
5.79m x 2.36m(19' x 7'9)
2.49m x 1.04m(8'2 x 3'5)
2.36m x 1.83m(7'9 x 6')
3.99m x 3.58m(13'1 x 11'9)
3.35m x 2.44m(11' x 8')
3.25m x 1.57m(10'8 x 5'2)
6.45m x 41.76m(21'2 x 137)
7 Blackburn Road, Accrington, BB5 1HF.