SPACIOUS THREE BEDROOM MID TERRACED PROPERTY NOT TO BE MISSED
Welcome to this charming mid-terrace house located on Mere Street in Rochdale. This spacious home boasts three generously sized…
SPACIOUS THREE BEDROOM MID TERRACED PROPERTY NOT TO BE MISSED
Welcome to this charming mid-terrace house located on Mere Street in Rochdale. This spacious home boasts three generously sized bedrooms, making it an ideal choice for families or those seeking extra space. The property features two inviting reception rooms, perfect for entertaining guests or enjoying quiet evenings at home.
The well-appointed kitchen provides a functional space for culinary enthusiasts, while the two bathrooms ensure convenience for all residents. One of the standout features of this property is the delightful rear garden, which not only offers a tranquil outdoor space but also includes outside storage for your gardening tools and equipment.
Additionally, the garden room is a unique highlight, equipped with electricity, making it an excellent spot for movie nights or a peaceful retreat. This versatile space can be tailored to suit your needs, whether as a home office, playroom, or simply a place to unwind.
Situated in a convenient location, this home is close to local amenities and transport links, providing easy access to the wider Rochdale area. With its combination of space, comfort, and potential, this property is a wonderful opportunity for anyone looking to settle in a welcoming community. Don’t miss the chance to make this lovely house your new home.
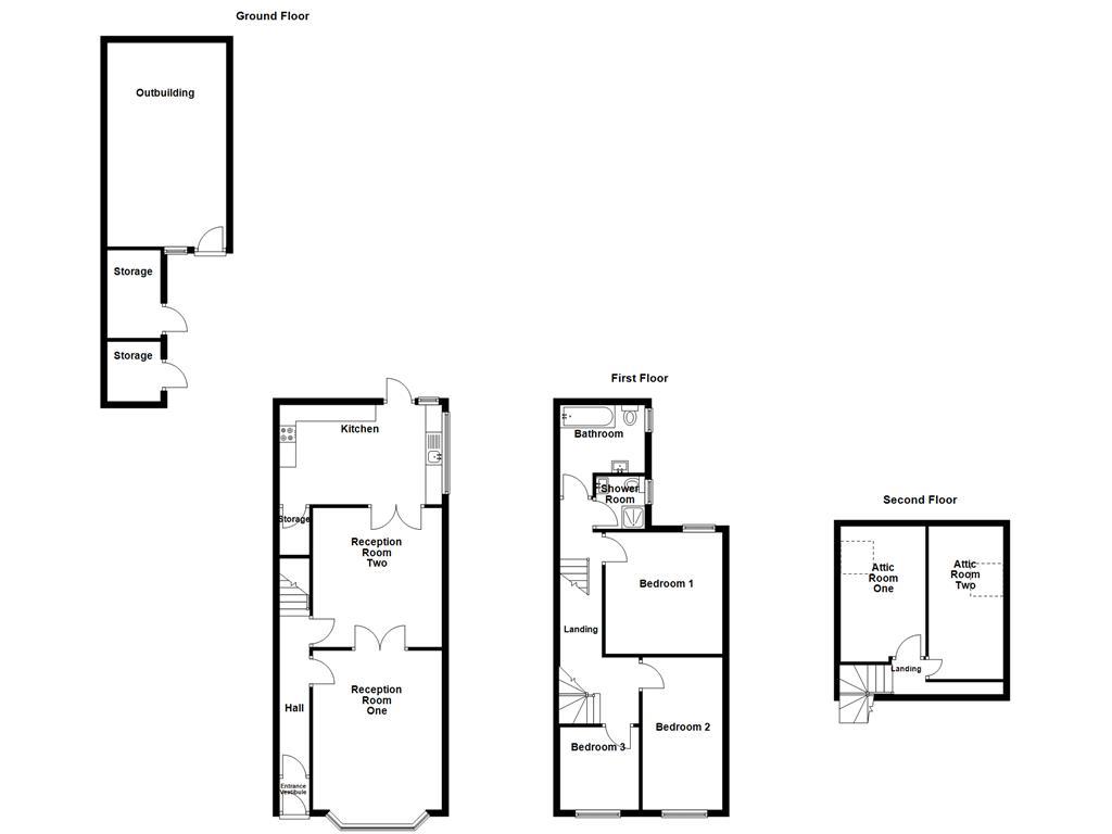
Composite door to vestibule.
Single glazed door with frosted glass leading to hall.
Central heating radiator, cornice coving, corbel, doors to two reception rooms and stairs to first floor, wood effect laminate flooring.
4.88m x 3.96m(16' x 13')
UPVC double glazed bay window, central heating radiator, decorative cornice coving, ceiling rose, electric fire with marble surround, television point, wood effect laminate flooring and double doors to reception room two.
4.27m x 3.96m(14' x 13')
Central heating radiator, decorative cornice coving, ceiling rose, gas fire with marble surround, wood effect laminate flooring and double doors to kitchen.
4.57m x 3.05m(15' x 10')
Two UPVC double glazed windows, vertical central heating radiator, gloss wall and base units, marble effect work top, tiled splash back, stainless steel sink and mixer tap, integrated oven, four ring gas hob, stainless steel splash back, extractor hood, plumbing for washing machine space for fridge freezer, PVC cladding to ceiling, tiled floor and UPVC door to rear.
Doors to three bedrooms, bathroom, shower room and stairs to second floor.
4.70m x 2.74m(15'5 x 9')
UPVC double glazed window and central heating radiator.
3.71m x 3.53m(12'2 x 11'7)
UPVC double glazed window and central heating radiator.
2.51m x 2.13m(8'3 x 7')
UPVC double glazed window and central heating radiator.
2.57m x 1.60m(8'5 x 5'3)
UPVC double glazed frosted window, central heating towel rail, dual flush WC, vanity top wash basin with mixer tap, panel bath, tiled elevation, extractor fan, PVC to ceiling, spotlights and tiled floor.
1.63m x 1.60m(5'4 x 5'3)
UPVC double glazed frosted window, central heating radiator, dual flush WC, vanity top wash basin with mixer tap, enclosed electric feed shower, tiled elevation, extractor fan, PVC clad to ceiling and tiled floor.
Doors to two attic rooms.
4.27m x 2.69m(14' x 8'10)
Velux window and central heating radiator.
Velux window and central heating radiator.
Enclosed rear yard with artificial grass, access to storage rooms and outbuilding, outside electric socket.
UPVC double glazed door, UPVC double glazed window, electric radiator, media wall, recessed spotlights and wood effect laminate flooring.
Enclosed block paved courtyard.
569 Bury Road, Rochdale , OL11 4DQ