• 2 Bed
  • 1 Bath
  • 2 Receptions

Princess Street, Accrington

£130,000

STYLISH TWO BEDROOM MID TERRACE HOME WITH LOFT ROOM

Located on the charming Princess Street in Accrington, this delightful two-bedroom mid-terrace house has been fully renovated to offer…

  • Two double bedrooms
  • Modern Four Piece Bathroom Suite
  • Open Plan Kitchen/Dining Area
  • Attic Conversion
  • Fully Renovated
  • On Street Parking
  • Ideal First Time Buy And Ready To Move Into
  • EPC Rating TBC
  • Council Tax Band A
  • Tenure Leasehold

STYLISH TWO BEDROOM MID TERRACE HOME WITH LOFT ROOM

Located on the charming Princess Street in Accrington, this delightful two-bedroom mid-terrace house has been fully renovated to offer a modern and inviting living space. Ideal for first-time buyers, this property boasts an open-plan ground floor layout that seamlessly combines the lounge and a stylish kitchen dining area. The design is perfect for both entertaining guests and enjoying quiet family meals, with doors that open out into a lovely rear yard, providing a wonderful outdoor space for relaxation.

The first floor features two generously sized double bedrooms, ensuring ample space for comfort and privacy. The property is completed by a contemporary four-piece family bathroom, designed with modern fixtures and fittings to cater to all your needs.

This home is ready to move into, making it an excellent choice for those looking to settle in a vibrant community. With its thoughtful renovations and appealing layout, this property is not just a house, but a place to create lasting memories. Don’t miss the opportunity to make this charming home your own.

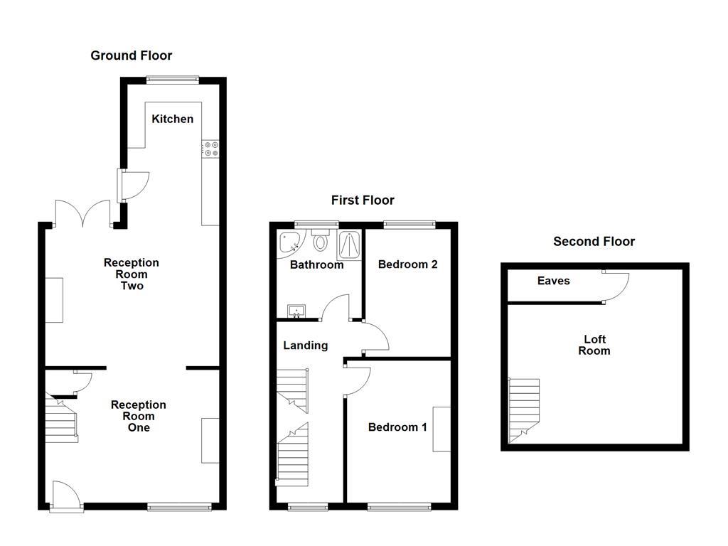
Ground Floor

Reception Room One

4.90m x 3.71m(16'1 x 12'2)

Reception Room Two

4.90m x 3.86m(16'1 x 12'8)

Kitchen

3.96m x 2.59m(13' x 8'6)

First Floor

Landing

4.67m x 2.54m(15'4 x 8'4)

Bedroom One

3.48m x 3.15m(11'5 x 10'4)

Bedroom Two

3.48m x 2.36m(11'5 x 7'9)

Bathroom

2.54m x 2.51m(8'4 x 8'3)

Second Floor

Loft Room

4.95m x 4.93m(16'3 x 16'2)

External

Rear

Enclosed rear yard space with access to shared road.

Read more

  • Two double bedrooms
  • Modern Four Piece Bathroom Suite
  • Open Plan Kitchen/Dining Area
  • Attic Conversion
  • Fully Renovated
  • On Street Parking
  • Ideal First Time Buy And Ready To Move Into
  • EPC Rating TBC
  • Council Tax Band A
  • Tenure Leasehold

Contact the agent

  7 Blackburn Road, Accrington, BB5 1HF.


Location

Use one of our helpful calculators

years
%

Your approximate mortgage cost is:

£0/month

Stamp duty to pay is:

£0

What's nearby?

floorplan

Similar properties

We’re proud to be a part of