• 7 Bed
  • 5 Bath
  • 5 Receptions

Bankhead Lane, Hoghton

£1,700,000 Offers Over

A TRULY STUNNING DETACHED HOME, POOL, ANNEXE & LAND

This immaculate economical detached estate offers a rare blend of architectural sophistication, cutting-edge technology, and luxurious multi generational living…

  • Outstanding Detached Property Set Within 1.5 Acres of Land
  • Additional Annexe Generating £51k Per Annum and £28k in Future Bookings
  • Seven Bedrooms and Five Bathrooms
  • Impressive Pool House
  • Fully Renovated with Potential for Multiple Planning Options and Possible Access Road
  • Stunning Landscaped Gardens Surrounding and Spectacular Nine-Hole Putting Green
  • Gated Driveway Providing Ample Off Road Parking
  • Tenure Freehold
  • Council Tax Band G
  • EPC Rating C

A TRULY STUNNING DETACHED HOME, POOL, ANNEXE & LAND

This immaculate economical detached estate offers a rare blend of architectural sophistication, cutting-edge technology, and luxurious multi generational living across three distinct dwellings, all set within 1.5 acres of landscaped grounds. The main house, a four-bedroom masterpiece, has been finished to the highest specification, with every detail carefully considered to deliver comfort, style, and efficiency. At its heart lies a stunning open-plan living space that seamlessly integrates the kitchen, dining, utility, and family areas. The bespoke kitchen features granite worktops, smart storage, a Mercury induction range, and a striking central island with breakfast bar seating. Throughout the home, zonal underfloor heating, Mitsubishi ZEN air conditioning, and mobile-controlled lighting and blinds ensure effortless climate and ambience control
The main suite, located in the fully tanked basement level, evokes a boutique hotel feel with French doors opening onto a private balcony, a commercial-grade steam room, and a beautifully appointed dressing area. All bedrooms are generously proportioned, with bespoke wardrobes, updated glazing, and high-end finishes. The entire property has been rewired and re-insulated, with CAT 6 cabling, ceiling audio, and super-fast 7kW EV charger adding to its modern appeal. The property also benefits from CCTV throughout, controllable via a mobile, facial recognition entry. Outside, the estate boasts a new roof with 300m Celotex insulation including soffits, facias and gutters, panoramic glazing, automated gates, a gym with a £20k automated door system, an outdoor kitchen with an automatic pergola, an Asphalt driveway providing off road parking, a spectacular nine-hole putting green and Airbnb generating £51k per annum. The grounds are illuminated by a fully automated lighting system and feature permanent festive lighting on major trees, creating a magical atmosphere year round.

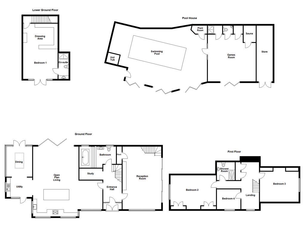
Ground Floor

Entrance Vestibule

2.08m x 0.74m(6'10 x 2'5)

Hardwood double front entrance doors, reinforced glass windows and door to hall.

Hall

4.88m x 2.44m(16'0 x 8'0)

Tiled flooring with underfloor heating, bespoke staircase with glass panelling to the first floor, made to measure glass security doors, and doors leading to reception room, bathroom, open plan kitchen/dining/living/utility and open arch to study.

Reception Room

8.48m x 5.08m(27'10 x 16'8)

UPVC double glazed picture window with electric remote blinds, spotlights, Mitsubishi air-conditioning (with 5 years warranty), media wall with CAT 5, inset remote fire and television point, recently fitted Valliant boiler with 5-year warranty, tiled flooring with underfloor heating, USB sockets, double sliding doors to balcony/terrace, bespoke staircase with glass panelling to the lower ground floor and door to plant room.

Bathroom

4.83m x 2.79m(15'10 x 9'2)

Two UPVC double glazed frosted windows, two LED illuminated smart mirrors, dual flush WC, vanity top wash basin with mixer tap, Roman tiled steps to sunken double bath with mixer tap and rinse head, spotlights, tiled elevations, extractor fan and tiled flooring with underfloor heating.

Study

3.05m x 1.47m(10'0 x 4'10)

Wood panelled elevation, granite desk, acoustic cladding, power and tiled flooring with underfloor heating.

Open Plan Kitchen/Dining/Living/Utility

12.95m x 9.22m(42'6 x 30'3)

Panelled base units with granite work surfaces and splashback, central island with breakfast bar and wine fridge, Mercury range cooker with five ring induction hob and extractor hood, inset composite sink with mixer boiler tap, integrated Neff double fridge, integrated Neff freezer, integrated bin store, integrated AEG dishwasher, integrated Hoover washing machine, integrated Candy dryer, composite sink and drainer with mixer tap, integrated speakers, spotlights, USB sockets, television point with hidden CAT 6, control panel for exterior lighting to the golf course, tiled flooring with underfloor heating, bi-folding doors to rear, atrium roof, UPVC double glazed windows with bespoke electric blinds and French doors to rear.

Lower Ground Floor

Bedroom One

7.26m 4.55m(23'10 14'11)

Part wood panelled elevation, television point, bespoke fitted dressing area, LED illuminated mirror, wine cooler, air-conditioning, Amtico flooring with underflooring heating, glass door to en suite, UPVC double glazed window and French doors to front.

En Suite

3.38m x 1.35m(11'1 x 4'5)

Central heated towel rail, dual flush WC, vanity top double wash basins with mixer taps, LED illuminated mirror, commercial grade steam room with bespoke bench and two rainfall shower heads and rinse head, tiled elevations and tiled flooring with underfloor heating.

First Floor

Landing

UPVC double glazed window, ceiling rose, eaves storage, airing cupboard, Amtico flooring with underfloor heating, doors leading to three bedrooms, shower room and fitted storage.

Bedroom Two

6.02m x 4.45m(19'9 x 14'7)

UPVC double glazed window with bespoke blinds, central heating radiator, Mitsubishi Zen air conditioning (under 5 years warranty), part wood panelled elevation, hardwood fitted wardrobes and desk, eaves storage, television point and Amtico flooring.

Bedroom Three

5.05m x 4.45m(16'7 x 14'7)

UPVC double glazed window with bespoke curtains, central heating radiator, Mitsubishi ZEN Air conditioning (under 5 years warranty), ceiling rose, eaves storage, hardwood fitted wardrobes, part wood panelled elevation and Amtico flooring.

Bedroom Four

3.07m x 2.62m(10'1 x 8'7)

UPVC double glazed window, central heating radiator, hardwood fitted wardrobes, wood panelled elevation, television point and Amtico flooring.

Shower Room

2.36m x 2.34m(7'9 x 7'8)

UPVC double glazed frosted window, central heated towel rail, dual flush WC, vanity top wash basin with mixer tap, direct feed rainfall shower with rinse head, extractor fan, tiled elevations and tiled flooring.

Annexe

Entrance

Composite double glazed frosted front entrance door to open plan kitchen/living area.

Open Plan Kitchen/Living Area

7.54m x 6.91m(24'9 x 22'8)

Two UPVC double glazed windows, two central heating radiators, panelled wall and base units with laminate work surfaces, central island with breakfast bar, integrated high rise double oven, four ring electric hob, composite one and a half bowl sink and drainer with mixer tap, integrated fridge freezer, spotlights, door to utility, UPVC double glazed French doors to rear and stairs to first floor.

Utility

2.49m x 2.41m(8'2 x 7'11)

Central heating radiator, panelled wall and base units with laminate work surfaces, stainless steel sink and drainer with mixer tap, plumbing for washing machine and dishwasher, door to WC and UPVC double glazed door to side elevation.

WC

2.41m x 0.94m(7'11 x 3'1)

Central heated towel rail, dual flush WC, vanity top wash basin with mixer tap and extractor fan.

First Floor

Landing

UPVC double glazed frosted window, central heating radiator, spotlights, smoke detector, doors leading to two bedrooms, shower room, store and spiral staircase to second floor.

Bedroom One

5.94m x 1.98m(19'6 x 6'6)

Two UPVC double glazed windows, central heating radiator and door to en suite.

En Suite

1.93m x 1.37m(6'4 x 4'6)

Central heated towel rail, dual flush WC, pedestal wash basin with mixer tap, direct feed rainfall shower with rinse head, spotlights, PVC panel elevations, extractor fan and wood effect flooring.

Bedroom Two

4.98m x 2.95m(16'4 x 9'8)

Two UPVC double glazed windows and two central heating radiators.

Shower Room

2.79m x 1.93m(9'2 x 6'4)

UPVC double glazed frosted window, central heating radiator, low basin WC, pedestal wash basin with traditional taps, direct feed corner shower, spotlights, tiled elevations and tiled effect flooring.

Store

1.93m x 1.07m(6'4 x 3'6)

Wall mounted boiler and tiled flooring.

Second Floor

Attic Bedroom

7.57m x 3.20m(24'10 x 10'6)

Two circular UPVC double glazed stained glass leaded window, three Velux windows, central heating radiator, fitted wardrobes and access to under eaves storage.

External

Set within 1.5 acres of professionally landscaped gardens with laid to lawn, bedding areas, mature shrubbery, trees, automated lighting system, feature permanent festive lighting on major trees and private, gated tarmac driveway.

Pool House

Adjacent to the main house is a luxurious pool house that redefines indoor-outdoor leisure. With three sets of high-quality bifold doors opening onto a composite terrace, the swimming pool area includes a hot tub, commercial-grade liner, moisture-barrier ceiling with LED effects, and an 85-inch poolside television. The adjoining bar and games room can comfortably host up to 40 guests and includes a sauna, under-counter fridges, a new pool table, and a beautifully remodelled hardwood bar. Every element, from the Calorex dehumidifier to the automated pool cover and waterproof speaker system, has been designed for both performance and pleasure.

Agents

Recently fitted Valliant boiler with a 5 year warranty.
Recently fitted pool pump.
A highly economical Immersion heater.
Underfloor heating throughout.
A full re wire with the new distribution boards has been completed.
Air conditioning fitted throughout the lounge and bedrooms.

Read more

  • Outstanding Detached Property Set Within 1.5 Acres of Land
  • Additional Annexe Generating £51k Per Annum and £28k in Future Bookings
  • Seven Bedrooms and Five Bathrooms
  • Impressive Pool House
  • Fully Renovated with Potential for Multiple Planning Options and Possible Access Road
  • Stunning Landscaped Gardens Surrounding and Spectacular Nine-Hole Putting Green
  • Gated Driveway Providing Ample Off Road Parking
  • Tenure Freehold
  • Council Tax Band G
  • EPC Rating C

Contact the agent

  4 Wellgate, Clitheroe, BB7 2DP.


Location

Use one of our helpful calculators

years
%

Your approximate mortgage cost is:

£0/month

Stamp duty to pay is:

£0

What's nearby?

floorplan

Property EPC 1

Similar properties

We’re proud to be a part of