• 3 Bed
  • 2 Bath
  • 3 Receptions

Westwood Avenue, Rishton, Blackburn

£260,000 Offers Over

THREE BEDROOM SEMI DETACHED DORMA BUNGALOW IN THE HEART OF RISHTON

Presenting Westwood Avenue in Rishton, Blackburn, this fully renovated three-bedroom semi-detached dormer bungalow offers an exceptional opportunity…

  • Tenure Leasehold
  • Council Tax Band D
  • EPC Rating D
  • Off Road Parking
  • Three Well Proportioned Bedrooms
  • Contemporary Fitted Kitchen/Dining Area
  • Ideal Family Home
  • Abundance Of indoor And Outdoor Space
  • Viewing Essential
  • Easy Access To Major Network Links

THREE BEDROOM SEMI DETACHED DORMA BUNGALOW IN THE HEART OF RISHTON

Presenting Westwood Avenue in Rishton, Blackburn, this fully renovated three-bedroom semi-detached dormer bungalow offers an exceptional opportunity for modern living. The property boasts a contemporary open-plan kitchen diner, perfect for entertaining and family gatherings, complemented by a separate cosy lounge space that invites relaxation.

The ground floor features a well-appointed family bathroom, while the first floor hosts a master bedroom complete with a walk-in wardrobe, a second double bedroom fitted with wardrobes, and a third bedroom, ideal for guests or as a home office.

Outside, the landscaped garden offers a delightful outdoor space, perfect for enjoying sunny days or hosting barbecues. The property also includes a detached garage and a driveway, providing ample off-road parking for your convenience.

With its modern amenities and thoughtful design, this bungalow is ready for you to move in and make it your own. Additionally, its proximity to transport links ensures easy access to local amenities and beyond. This property is a true gem, combining comfort and style in a desirable location. Don’t miss the chance to view this splendid home.

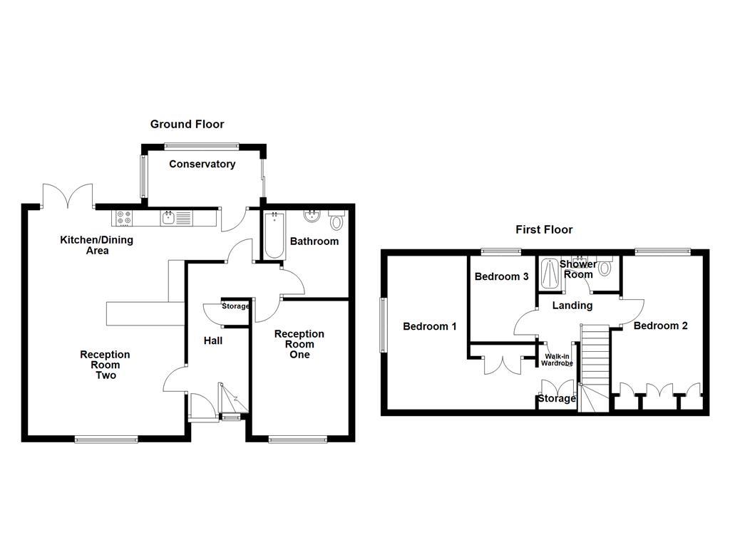
Ground Floor

Entrance

Composite frosted door to hall

Hall

4.65m x 3.40m(15'3 x 11'2)

Central heating radiator, coving, doors to WC, reception room, kitchen/dining area and stairs to first floor.

Reception Room One

4.19m x 3.00m(13'9 x 9'10)

UPVC double glazed window and central heating radiator.

Reception Room Two

4.50m x 3.48m(14'9 x 11'5)

UPVC double glazed window, television point, open to kitchen/dining area and wood effect laminate flooring.

Kitchen/Dining Area

7.19m x 3.40m(23'7 x 11'2)

Two UPVC double glazed windows, two central heating radiators, gloss wall and base units, wood effect work top, stainless steel sink and drainer with mixer tap, oven, four ring electric hob, extractor hood, integrated dishwasher, fridge freezer and separate freezer, spotlights, smoke alarm, wood effect laminate flooring and UPVC sliding doors to rear.

Conservatory

3.48m x 1.73m(11'5 x 5'8)

UPVC double glazed windows ,plumbed for washing machine, space for under counter fridge and freezer, two feature wall lights, wood effect laminate flooring and UPVC sliding doors to rear.

Bathroom

2.72m x 2.64m(8'11 x 8'8)

UPVC frosted window, central heating radiator, low flush WC, pedestal wash basin, bath with mixer tap and rinse head, spotlights, extractor fan, part tiled elevation and tiled floor.

First Floor

Landing

2.49m x 1.35m(8'2 x 4'5)

Smoke alarm, doors to three bedrooms and bathroom.

Bedroom One

5.26m x 4.52m(17'3 x 14'10)

UPVC double glazed window, central heating radiator, fitted wardrobe and open to walk in wardrobe.

Walk In Wardrobe

Fitted wardrobe.

Bedroom Two

4.72m x 3.02m(15'6 x 9'11)

UPVC double glazed window, central heating radiator and fitted wardrobe.

Bedroom Three

2.69m x 2.01m(8'10 x 6'7)

UPVC double glazed window, central heating radiator and loft access.

Shower Room

2.51m x 1.12m(8'3 x 3'8)

UPVC frosted window, central heating radiator, dual flush WC, vanity top wash basin with waterfall mixer tap, enclosed direct feed rainfall shower and rinse head, part tiled elevation, spotlights, extractor fan and wood effect lino flooring.

External

Front

Stone chippings, drive and hedges, garage.

Rear

Enclosed laid to lawn garden, decking and stone chippings.

Read more

  • Tenure Leasehold
  • Council Tax Band D
  • EPC Rating D
  • Off Road Parking
  • Three Well Proportioned Bedrooms
  • Contemporary Fitted Kitchen/Dining Area
  • Ideal Family Home
  • Abundance Of indoor And Outdoor Space
  • Viewing Essential
  • Easy Access To Major Network Links

Contact the agent

  7 Blackburn Rd, Accrington, BB5 1HF.


Location

Use one of our helpful calculators

years
%

Your approximate mortgage cost is:

£0/month

Stamp duty to pay is:

£0

What's nearby?

floorplan

Property EPC 1

Similar properties

We’re proud to be a part of