• 3 Bed
  • 1 Bath
  • 3 Receptions

Ribchester Road, Clayton Le Dale

£335,000 Offers Over

THE PERFECT FAMILY HOME

Nestled on Ribchester Road in the charming village of Clayton le Dale, this well-positioned three-bedroom semi-detached family home presents an excellent opportunity for those…

  • Tenure Freehold
  • Council Tax Band D
  • EPC Rating D
  • Off Road Parking For Numerous Vehicles
  • Ideal Family Home
  • Viewing Essential
  • Sought After Location
  • Three Well Proportioned Bedrooms
  • Fitted Kitchen And Three Piece Shower Room
  • Easy Access To Major Commuter Routes

THE PERFECT FAMILY HOME

Nestled on Ribchester Road in the charming village of Clayton le Dale, this well-positioned three-bedroom semi-detached family home presents an excellent opportunity for those seeking a comfortable and inviting residence. The property boasts four spacious reception rooms, providing ample space for family gatherings and entertaining guests.

The home is well-maintained, allowing you to move straight in without the need for immediate renovations. Its neutral finishes throughout offer a blank canvas, perfect for those wishing to add their personal touch and modernise the space to their liking.

A newly finished driveway enhances the property, providing off-road parking for multiple vehicles, a valuable feature for families and visitors alike. This home is ideally suited for a growing family, with convenient access to the A59, making commuting towards Preston, Clitheroe, and Skipton a breeze. Additionally, it is located close to the highly regarded Salesbury Primary School, ensuring that educational needs are well catered for.

In summary, this semi-detached house on Ribchester Road is a delightful family home that combines comfort, convenience, and potential for personalisation, making it a must-see for prospective buyers.

For the latest upcoming properties, make sure you are following our Instagram @keenans.ea and Facebook @keenansestateagents

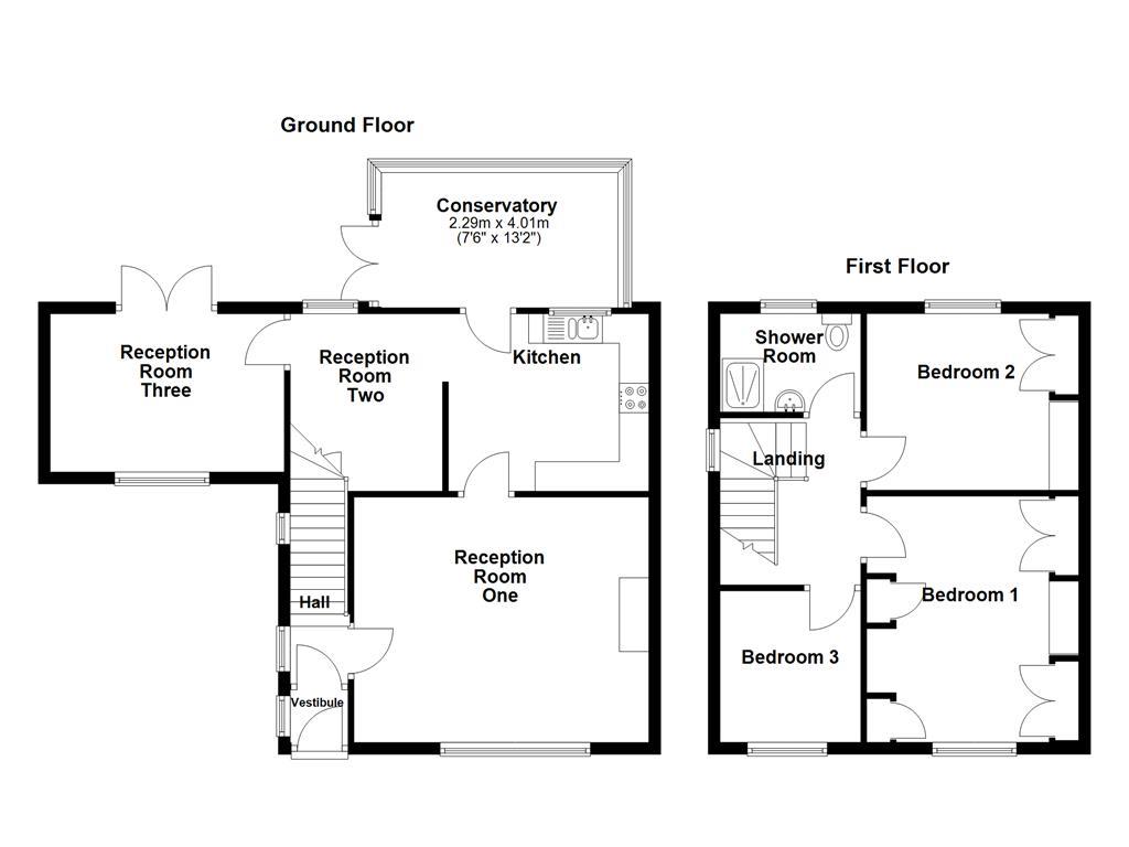
Ground Floor

Entrance

UPVC double glazed frosted door to vestibule.

Vestibule

0.99m x 0.89m(3'3 x 2'11)

Door to hall.

Hall

0.97m x 0.94m(3'2 x 3'1)

Central heating radiator, UPVC double glazed window, stairs to first floor and door to reception room one.

Reception Room One

5.00m x 4.17m(16'5 x 13'8)

UPVC double glazed window, central heating radiator, ceiling rose, coving, living flame gas fire, marble heath and surround, decorative wooden mantel, two feature wall lights, television point and door to kitchen.

Kitchen

3.40m x 3.00m(11'2 x 9'10)

UPVC double glazed window, wall and base units, laminate work top, oven in a high rise unit, four ring electric hob, tiled splash back, extractor hood, stainless steel one and a half sink and drainer with mixer tap, integrated microwave, space for fridge freezer, plumbed for washing machine, tiled effect flooring, UPVC double glazed frosted door to conservatory and open access to reception room two.

Conservatory

3.99m x 2.29m(13'1 x 7'6)

UPVC double glazed windows with pitched polycarbonate roof, central heating radiator and UPVC double glazed French doors to rear.

Reception Room Two

2.97m x 2.44m(9'9 x 8')

Two UPVC double glazed windows, central heating radiator, tiled effect flooring, doors to under stairs storage and reception room three.

Reception Room Three

3.96m x 2.69m(13' x 8'10)

UPVC double glazed window, central heating radiator, coving and UPVC double glazed French doors to rear.

First Floor

Landing

UPVC double glazed window, central heating radiator, loft access, doors to three bedrooms and shower room.

Bedroom One

4.17m x 3.45m(13'8 x 11'4)

UPVC double glazed window, central heating radiator and fitted wardrobes.

Bedroom Two

3.45m x 3.02m(11'4 x 9'11)

UPVC double glazed window, central heating radiator and fitted wardrobes.

Bedroom Three

2.57m x 2.44m(8'5 x 8')

UPVC double glazed window and central heating radiator.

Shower Room

2.36m x 1.68m(7'9 x 5'6)

UPVC double glazed frosted window, central heating towel rail, dual flush WC, vanity top wash basin with mixer tap, walk in direct feed rainfall shower with rinse head, PVC panelling in shower, tiled elevation, illuminated mirror and wood effect flooring.

External

Rear

Laid to lawn garden, gravel chipped bedding areas, pond, shed and countryside views.

Front

Gravel chipped bedding areas, extensive block paved off road parking for numerous vehicles.

Read more

  • Tenure Freehold
  • Council Tax Band D
  • EPC Rating D
  • Off Road Parking For Numerous Vehicles
  • Ideal Family Home
  • Viewing Essential
  • Sought After Location
  • Three Well Proportioned Bedrooms
  • Fitted Kitchen And Three Piece Shower Room
  • Easy Access To Major Commuter Routes

Contact the agent

  4 Wellgate, Clitheroe, BB7 2DP.


Location

Use one of our helpful calculators

years
%

Your approximate mortgage cost is:

£0/month

Stamp duty to pay is:

£0

What's nearby?

floorplan

Property EPC 1

Similar properties

We’re proud to be a part of